(⬆️혹시 위쪽에 광고가 나온다면 클릭x. 이후 나오는 광고 클릭만 작성자에게 도움이 됩니다.⬇️)
-------------
송도 8공구 롱비치 파크와 이어지는 수변공원 2단계 시마크비치 조감도 영상이 공개되었다. 🏖️
출처
<속보> 롱팍 2단계 영상 입수
대한민국 모임의 시작, 네이버 카페
cafe.naver.com
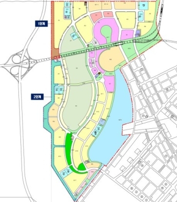
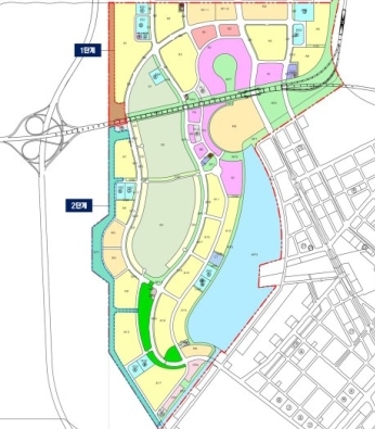
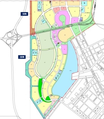
수변공원 1단계 롱비치 파크
송도 8공구 해변의 수변공원 개장 - 롱비치파크
출처 사람이 많아 더 좋더군요. 대한민국 모임의 시작, 네이버 카페 cafe.naver.com 정식명칭은 랜드마크시티 1호 수변 공원. 보통은 송도 해변공원으로 부르고 레터링 조형물은 롱비치파크 초기 계
timd.tistory.com
6,8공구 개발계획 중 바다옆으로 4.2km의 공원이 이어지는데
마리나베이 아파트 앞쪽은 1단계 수변공원이 완공되었다.

인천대교를 중심으로 인천대교 위가 1단계,아래가 2단계로 구분.


2단계 공원명은 SEA MARK BEACH

정확한 위치는 위치는 6공구 해변라인부터 인천대교까지

공원은 아래와 같은 모습으로 꾸며진다.
전망언덕
전망터널
스카이데크
Sea Mark Beach
스탠딩필드
오픈로드
맨발걷기길
자연숲놀이터

















인공해변은 가장 공들인 공간으로 보이고 위치는 아래와 같다.(M3/M4구역)









전반적으로 평범하지만 인공해수해변이 가장큰 차이점이고
수변공원을 따라 대형카페가 들어올 상가들이 많다는점에서 롱비치파크보다는 더 좋을거같다.
롱비치파크의 단점이 나무와 그늘, 상가의 부족인데
씨마크비치에는 나무가 많아보이고 그늘막 설치 등으로 단점을 보완했으며 인공해변은 4계절, 주야간 이용가능하도록 조명 및 수심조절도 가능하다고 한다.
접근성이 떨어지는 단점이 있으나 상가주차장이나 워터프론트1-1주변 등에 주차하면 되지 않을까. 주말에는 갓길주차도 허용해줄테고.
잘 만들어져서 송도의 명소가 되길!
| 송도 M5 및 워터프론트 남측 연결수로 개발 소식 (1) | 2024.03.11 |
|---|---|
| 송도 워터프론트 1-1구역 수변 상가 개발 계획 분석 (0) | 2023.06.26 |
| 송도 핵심지 - 워터프론트 M5 부지 분석 (0) | 2023.06.26 |
| 송도국제도시 워터프런트 1단계 활성화계획 수립 용역 - 과업내용서 (0) | 2023.04.02 |
| A15 송도 힐스테이트레이크 5차 조감도 (0) | 2022.09.16 |